2018년 4월 공포되어 2018년 10월 18일 건축법 64조 3항이 신설되었습니다.
|
건축법 제64조(승강기) ③ 고층건축물에는 제1항에 따라 건축물에 설치하는 승용승강기 중 1대 이상을 대통령령으로 정하는 바에 따라 피난용승강기로 설치하여야 한다 |
기존에는 공동주택을 제외한 건축물에만 적용되어 있었으나,
공동주택 제외라는 문구가 빠지면서 결국 공동주택도 고층건축물(30층 또는 120m 이상)에 해당하는 경우 피난용승강기를 설치하여야 합니다.

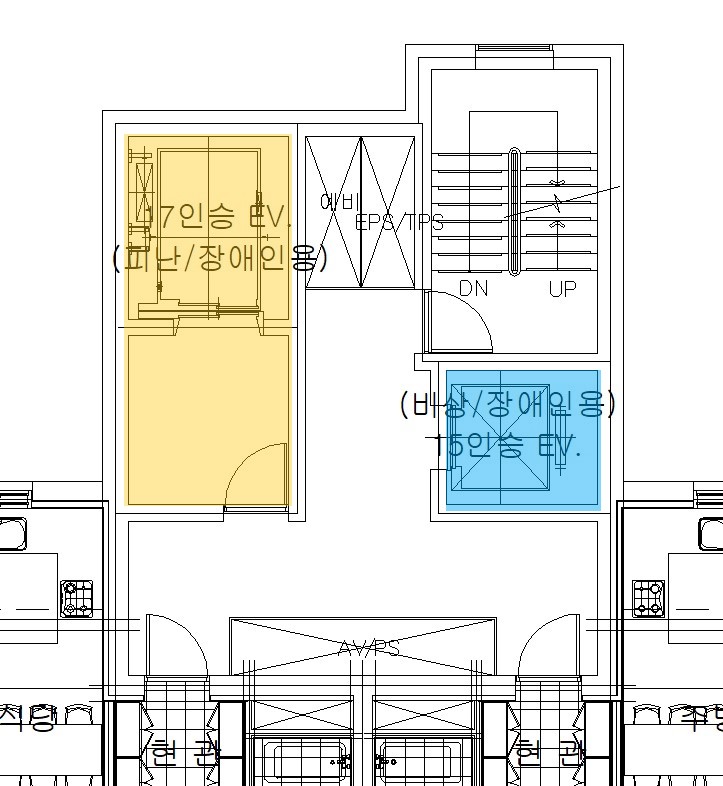
위의 그림은 30층이상의 공동주택의 코어입니다.
기존에는 한 코어에 비상용승강기(하늘색)만 설치하면 되었지만,
법 개정에 따라 피난용승강기(노랑색)을 추가로 설치하여야 합니다.
비상용 승강기와 피난용 승강기 겸용은 불가능?
기존에는 할 필요가 없던 승강기를 추가로 설치하려고 하니
승강기 및 전실 추가에 따른 공용면적이 커지면서
공동주택 주동을 배치하는데 제약이 되고, 사업주 입장에서는 공사비만 상승하게 되기 때문입니다.
이에 대해 업계에서는 비상용승강기와 피난용승강기를 겸용으로 할 수 없는냐?는 질의를 많이 했습니다.
이에 국토교통부에서는 ' 피난용 승강기 설치 적용 관련 운영지침'을 만들었습니다.

비상용 승강기는 소방관 활동을 위한 것이고,
피난용 승강기는 일반인이 피난용으로 활용하는 것이기 때문에,
겸용할 수 없다는 결론입니다.
공동주택의 피난용승강기는 '승강기 인승 산정'에서 제외된다?
만약 30층을 넘는 고층에 한 코어에 두개의 엘리베이터를 설치해야 하는 경우가 있다고 한다면
위의 그림처럼 하나는 비상용승강기로, 다른 하나는 피난용승강기를 활용하면 될 것입니다.
왜냐하면 피난용승강기는 건축법에서 승용승강기 중 하나를 이 구조로 설치하면 되기 때문입니다.
그런데 문제는 주택법에 따른 <주택건설기준에 관한 규정>에서
이 법의 적용을 받는 공동주택(10층 이상)의 경우 승강기는 비상용승강기의 구조로 하여야 한다는 문구에서 발생합니다.
승용승강기는 모두 비상용승강기 구조로 해야 하기 때문에
만약 2대의 승용승강기가 필요하면 비상용승강기로 설치하고 추가로 피난용 승강기로 설치해야 한다는 것입니다.
업계에서도 아직 의견이 분분한데,
국토교통부에서는 피난용승강기는 인승에 상관없이 추가로 해야하나는 해석을 내 놓고 있습니다.
기존에는 피난용승강기에 대한 설치가 제외되어 주택법에서도 비상용승강기의 구조만 언급했다고 생각하고
2018년 건축법 개정에 따른 주택법의 내용도 개정이 되어야할지
아니면 지금 국토교통부의 해석이 맞는 것인지는 조금 지켜봐야할 듯 합니다.
|
주택건설기준에 관한 규정 제15조(승강기등) ①6층 이상인 공동주택에는 국토교통부령이 정하는 기준에 따라 대당 6인승 이상인 승용승강기를 설치하여야 한다. 다만, 「건축법 시행령」 제89조의 규정에 해당하는 공동주택의 경우에는 그러하지 아니하다. <개정 1992. 5. 30., 1994. 12. 23., 1994. 12. 30., 1999. 9. 29., 2005. 6. 30., 2008. 2. 29., 2013. 3. 23.> ②10층 이상인 공동주택의 경우에는 제1항의 승용승강기를 비상용승강기의 구조로 하여야 한다. <개정 2007. 7. 24.> ③10층 이상인 공동주택에는 이사짐등을 운반할 수 있는 다음 각호의 기준에 적합한 화물용승강기를 설치하여야 한다. <개정 1993. 9. 27., 2001. 4. 30., 2016. 12. 30.> 1. 적재하중이 0.9톤 이상일 것 2. 승강기의 폭 또는 너비중 한변은 1.35미터 이상, 다른 한변은 1.6미터 이상일 것 3. 계단실형인 공동주택의 경우에는 계단실마다 설치할 것 4. 복도형인 공동주택의 경우에는 100세대까지 1대를 설치하되, 100세대를 넘는 경우에는 100세대마다 1대를 추가로 설치할 것 ④제1항 또는 제2항의 규정에 의한 승용승강기 또는 비상용승강기로서 제3항 각호의 기준에 적합한 것은 화물용승강기로 겸용할 수 있다. ⑤「건축법」 제64조는 제1항 내지 제3항의 규정에 의한 승용승강기ㆍ비상용승강기 및 화물용승강기의 구조 및 그 승강장의 구조에 관하여 이를 준용한다 |
|
주택건설기준에 관한 규칙 제4조(승강기) 영 제15조제1항 본문에 따라 6층 이상인 공동주택에 설치하는 승용승강기의 설치기준은 다음 각 호와 같다. <개정 2013. 7. 15.> 1. 계단실형인 공동주택에는 계단실마다 1대(한 층에 3세대 이상이 조합된 계단실형 공동주택이 22층 이상인 경우에는 2대) 이상을 설치하되, 그 탑승인원수는 동일한 계단실을 사용하는 4층 이상인 층의 세대당 0.3명(독신자용주택의 경우에는 0.15명)의 비율로 산정한 인원수(1명 이하의 단수는 1명으로 본다. 이하 이 조에서 같다) 이상일 것 2. 복도형인 공동주택에는 1대에 100세대를 넘는 80세대마다 1대를 더한 대수 이상을 설치하되, 그 탑승인원수는 4층 이상인 층의 세대당 0.2명(독신자용주택의 경우에는 0.1명)의 비율로 산정한 인원수 이상일 것 |
'건축 관련 정보 > 법령 해석' 카테고리의 다른 글
| 건축물 관리법 (2) | 2020.02.08 |
|---|---|
| 아파트(주택법 대상) 지하 주차장 층고 2.7m 예외 조항 (2) | 2020.02.02 |
| <해석> 주택의 필로티 층수 제외 관련 (0) | 2020.01.31 |
| (개정)신종업소에 대한 다중 이용업소법 적용 확대 (0) | 2020.01.28 |
| <용도> 다중생활시설_고시원 (1) | 2020.01.24 |